A detailed site plan showing property boundaries, house placement, and landscape features for a residential lot along Chemin du Trappeur.

First prop ready dec 2025

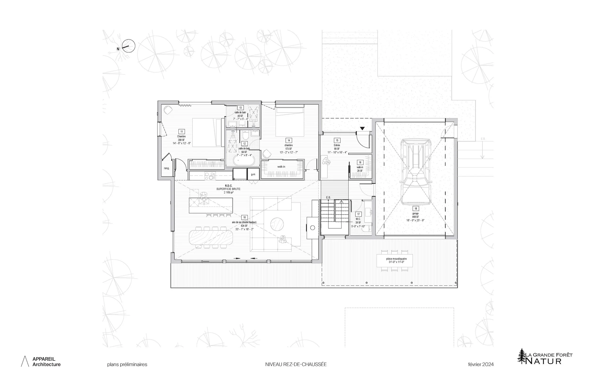
Floor Plan

The Exteriors


Architectural elevation drawing of a modern multi-story house on a sloped terrain, with detailed measurements and line annotations.
Architectural blueprint of a modern, multi-story house with large windows, surrounded by trees, showing detailed measurements and labels for different sections.

Second Floor

The Interiors

The exterior is designed to blend seamlessly with the natural landscape, using stone and wood that echo the surrounding forest. Clean lines and a tiered form follow the site's slope, while large windows frame the outdoors, allowing nature to become part of the living experience.

Modern house with a stone lower level and a wooden upper level, surrounded by trees and a landscaped yard with patio furniture.
Architectural elevation blueprint of a modern house with multiple levels, large windows, and stairs leading to the entrance, surrounded by trees.

Architectural floor plan of a house, including bedrooms, bathroom, living area, kitchen, garage, and outdoor spaces, with trees surrounding the property.

December 2025

Architectural floor plan of a basement level with rooms labeled and an outdoor terrace with seating, trees, and a spa area.

First floor

The house is designed as an open plan with 5 bedrooms including 2 main floor primary bedrooms, a huge central fireplace, 12 foot ceilings in the main level and 9 feet ceiling in the ground floor level. The architectural design incorporates expansive walls of glass to bring to outside in.

Let’s Build

From conceptualizing to constructing, we’re ready to design your architectural dream. We promise a client-centric approach that empowers ideas, eases concerns, and delivers quality craftsmanship we’ll all be proud of.